Здесь может быть ваша реклама
Звоните: 8 (915) 086-4035 | E-mail koordinator@primebro.com
Площадь, м2
Стоимость, руб

Продажа торговая площадь

№ 18785, размещено 12.12.2023 19:12
31 308 100 руб.
284 361 руб. за м²
371 (+248) просмотров
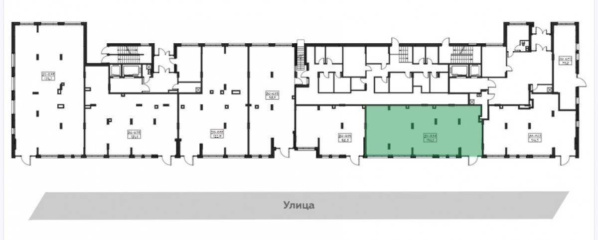
Площадь: 110.1 м2
Кол-во этажей: 16
Этаж: 1
Объект в базе №7972

Продается готовое помещение свободного назначения 110,1 м² в ЖК Москва А101 20,4 на юго-западе Москвы.

Помещение располагается на 1 этаже, открытая планировка, отдельный вход с фасада, высота потолка 4 м, витринные окна по фасаду.
Электрическая мощность 21.92 кВт (возможность увеличить мощность) , технологическая вентиляция 400х350, 250х200, Ду125.
Парковка перед фасадом. Место для размещения рекламы.

«Москва А101» – это район современной сложившейся застройки, расположенный в экологически благоприятной
юго-западной части Москвы. Летом 2019 года открылась станция Сокольнической линии метро. На автомобиле за
15 минут можно доехать до трёх крупных шоссе. Рядом строится один из крупнейших медицинских центров России
и административно-деловой центр. Очень развитая инфраструктура для жизни, работы и отдыха.

20 мин пешком до ст. метро «Коммунарка»
5 минут на авто до Калужского шоссе
12 минут на авто до ст. метро "Теплый Стан"
7 минут на авто до ст. метро "Бунинская Аллея"
6,5 км до МКАД
Москва, посёлок Коммунарка
Показать телефон +7 (XXX) XXX-XXXX
Написать сообщение

Другие объявления